The Power of Clear Documentation
At Scale, we treat 2D drafting as a craft. We curate drawing sets that prioritize readability, technical logic, and local New Zealand standards.
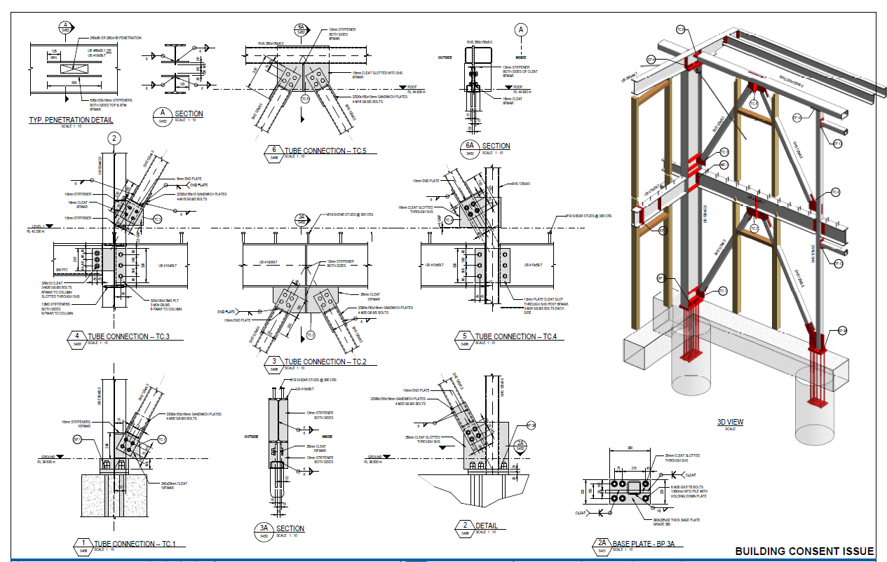
Steel & Seismic Detailing
Translating complex structural steel design into clean, readable details is a core Scale competency.
- Connection Drafting: High-resolution 2D sections of steel-to-steel and steel-to-concrete junctions.
- Seismic Retrofitting: Specialized documentation for retrofits, ensuring new structural steel is clearly detailed within existing building constraints.
- Member Schedules: Automated 2D schedules for plates, bolts, and members that remain 100% accurate to the 3D geometry.

Rebar Modelling & Reinforcement Plans

We take the “guesswork” out of concrete documentation by utilizing 3D modelling to generate perfect 2D plans.
- Congestion Resolution: We model complex rebar in 3D to identify clashes, but deliver clean 2D reinforcement plans that are easy for fixers to read on-site.
- Starters & Laps: Precise detailing of laps, seismic hooks, and starter bars in accordance with NZS 3101.
Structural BIM Models
The 3D model is the “Single Source of Truth” that ensures your 2D drawings are coordinated and clash-free.
- Multi-Discipline Coordination: We use the 3D environment to facilitate coordination with Architects and Services, ensuring your 2D structural plans won’t clash with the MEP layout.
- Cloud-Based Workflow: We work directly in your Autodesk Construction Cloud (ACC) or BIM 360 hub to ensure the latest design changes are instantly reflected in the drawing set.

Why Scale for Production?
- Zero Training Required: We speak the language of NZ structural engineering and understand local construction methods natively.
- Consistent Standards: We integrate into your office Revit templates to produce drawings that look like they were drafted in-house.
- Scalable Capacity: From small seismic retrofits to large-scale commercial builds, we provide the senior capacity to meet your BC deadlines.